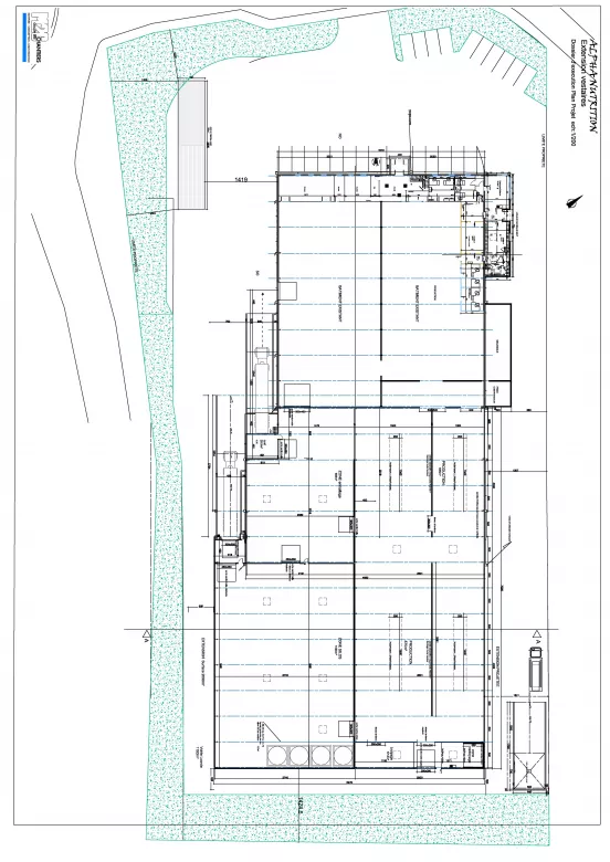
LOCALISATION :  haute-LOIRE(43)  

Alphanutrition

de sa conception..

Bâtiment polyvalent située dans le département de la Loire (42) et conçue et réalisée par M2C Chantiers. Offrant une expérience gastronomique complète, cette entreprise propose une boucherie de qualité, un restaurant et un service traiteur. Doté d'un laboratoire de fabrication ainsi que de chambres froides à température positive et négative, Le Viand'art/ la Boucherie Champ du geai est en mesure de fournir des produits frais et de qualité à ses clients. En plus de cela, la façade cadence carré apporte une touche esthétique unique à l'espace.

à sa réalisation..