LOCALISATION : Région Rhônes-Alpes
Chambre de l'agriculture de la loire
de sa conception..
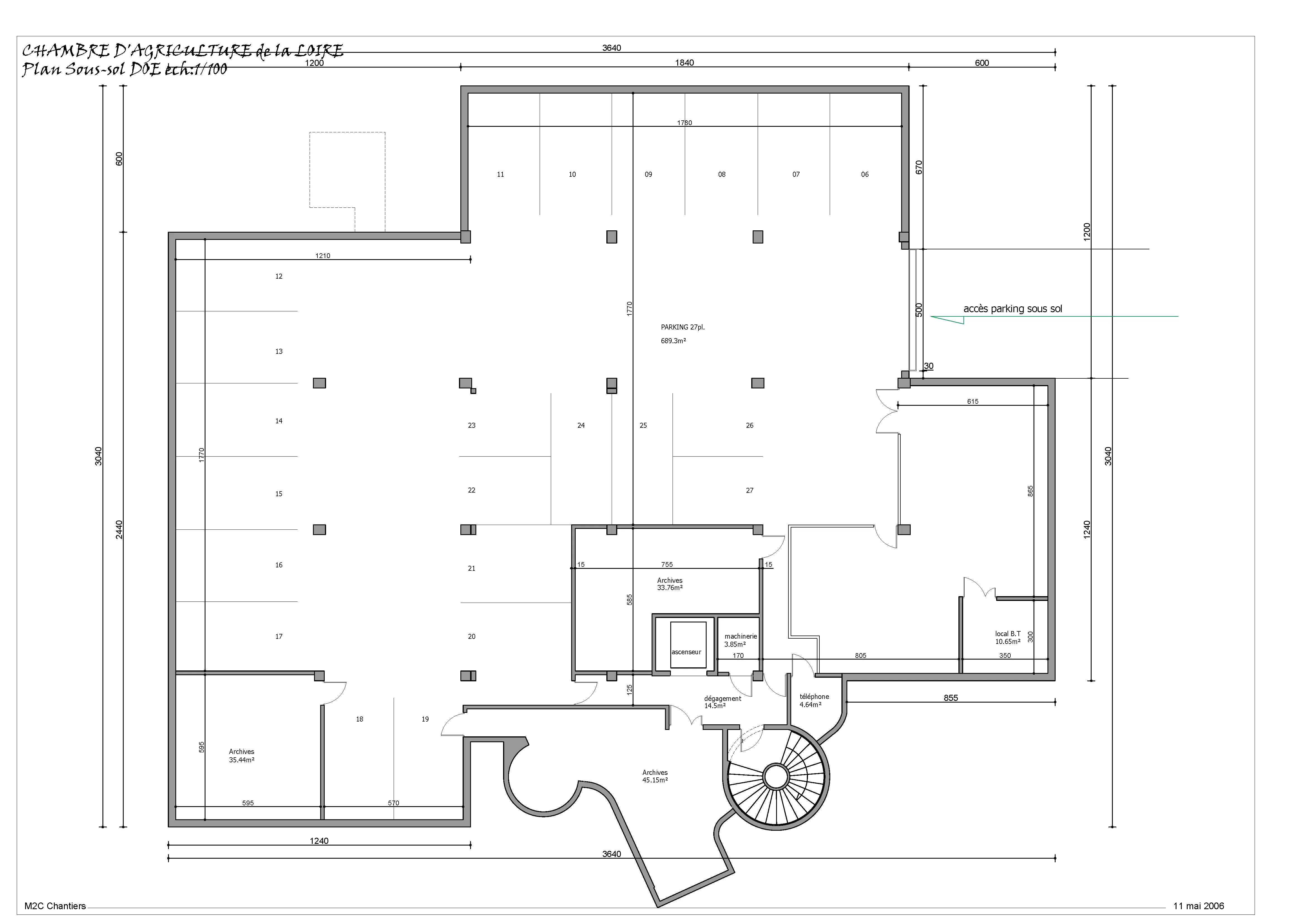
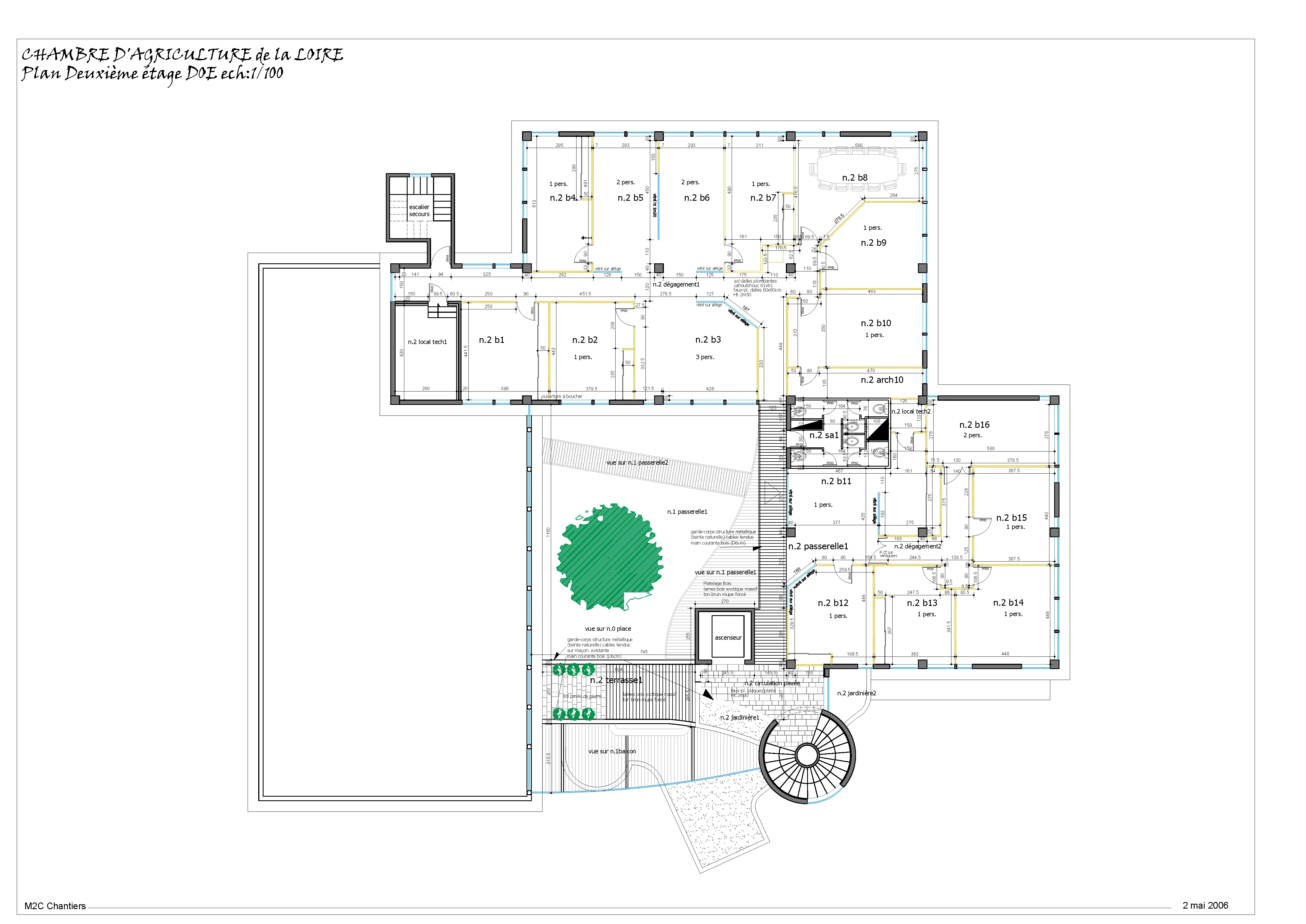
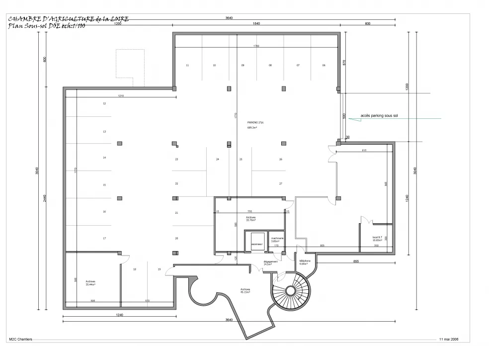
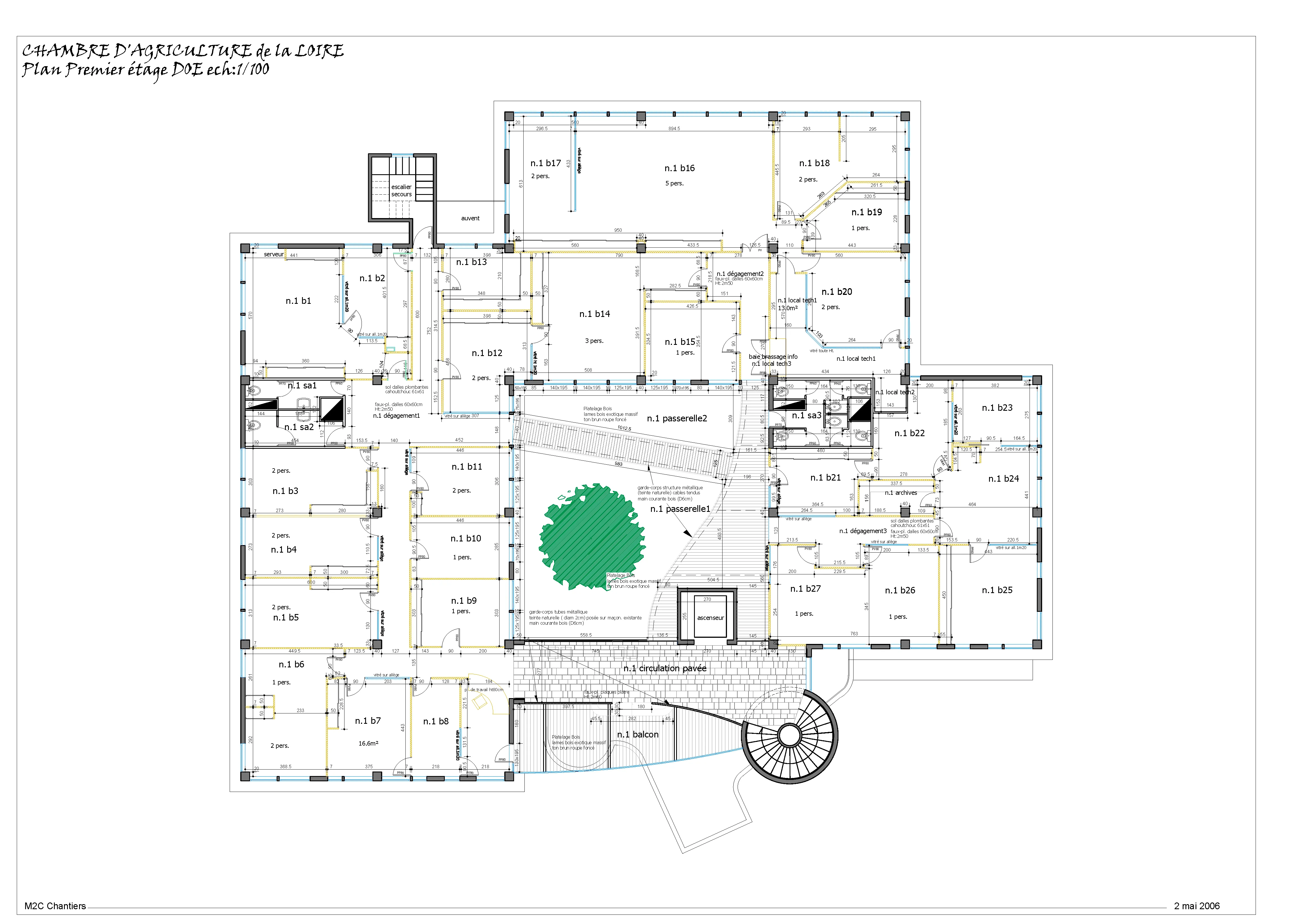
La Chambre de l'Agriculture de la Loire a été entièrement rénovée et conçue par M2C Chantiers pour offrir un espace de travail moderne et fonctionnel. Les particularités de ce projet sont nombreuses, notamment la création d'une magnifique verrière au-dessus du patio, qui permet de bénéficier d'une belle lumière naturelle. Les équipes de M2C Chantiers ont également rénovés les passerelles pour connecter les différents niveaux de l'espace, offrant une circulation fluide entre les différents bureaux. La rénovation complète de la Chambre de l'Agriculture de la Loire a été menée avec brio, témoignant de l'expertise de M2C Chantiers en matière de rénovation de bâtiments.


