LOCALISATION : andrézieux-bouthéon (42)
Colodge
de sa conception..
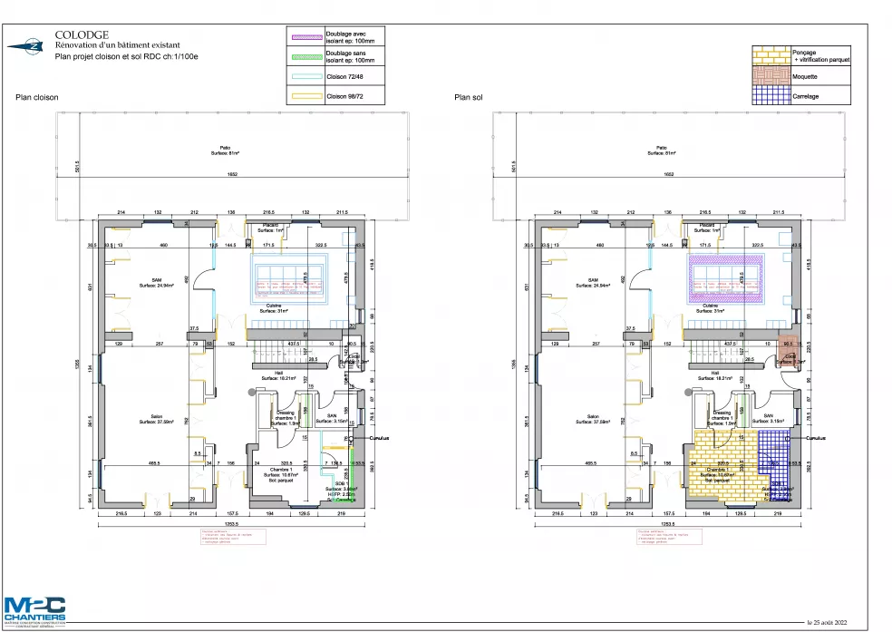
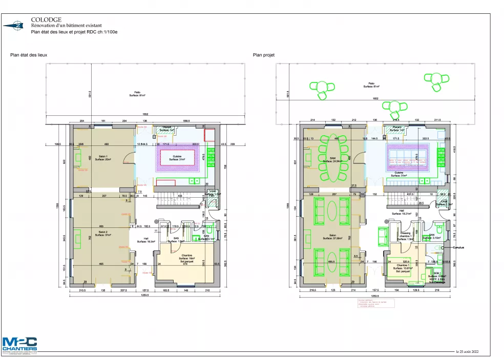
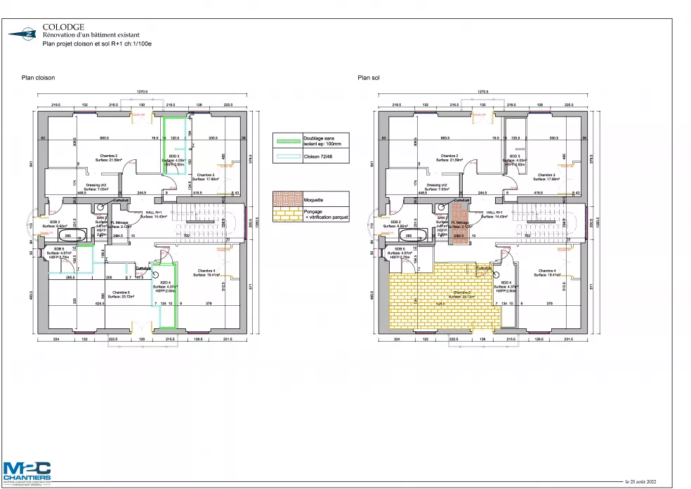
M2C Chantiers à fièrement collaboré avec Colodge pour transformer une remarquable propriété en un espace de coliving dynamique.
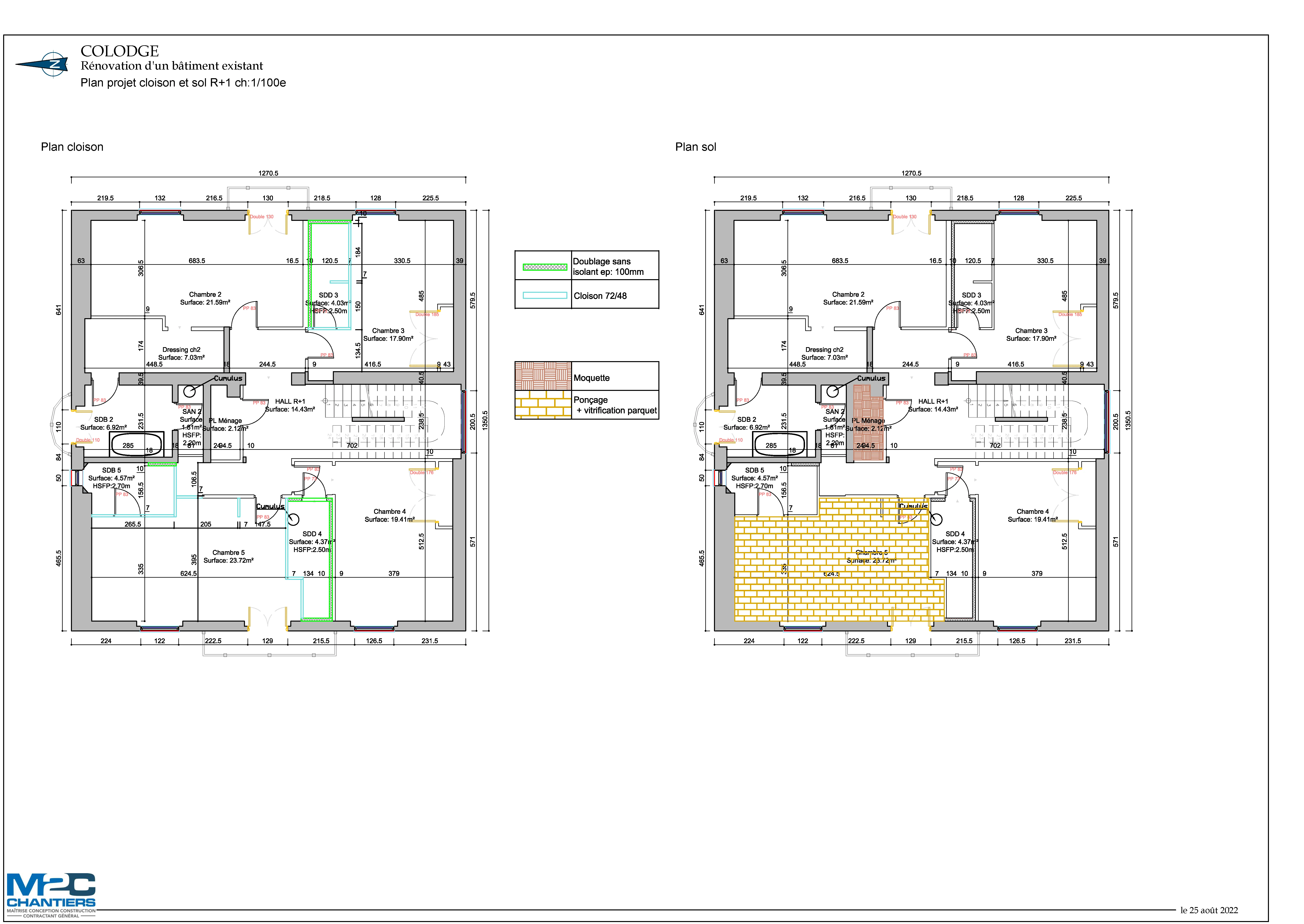
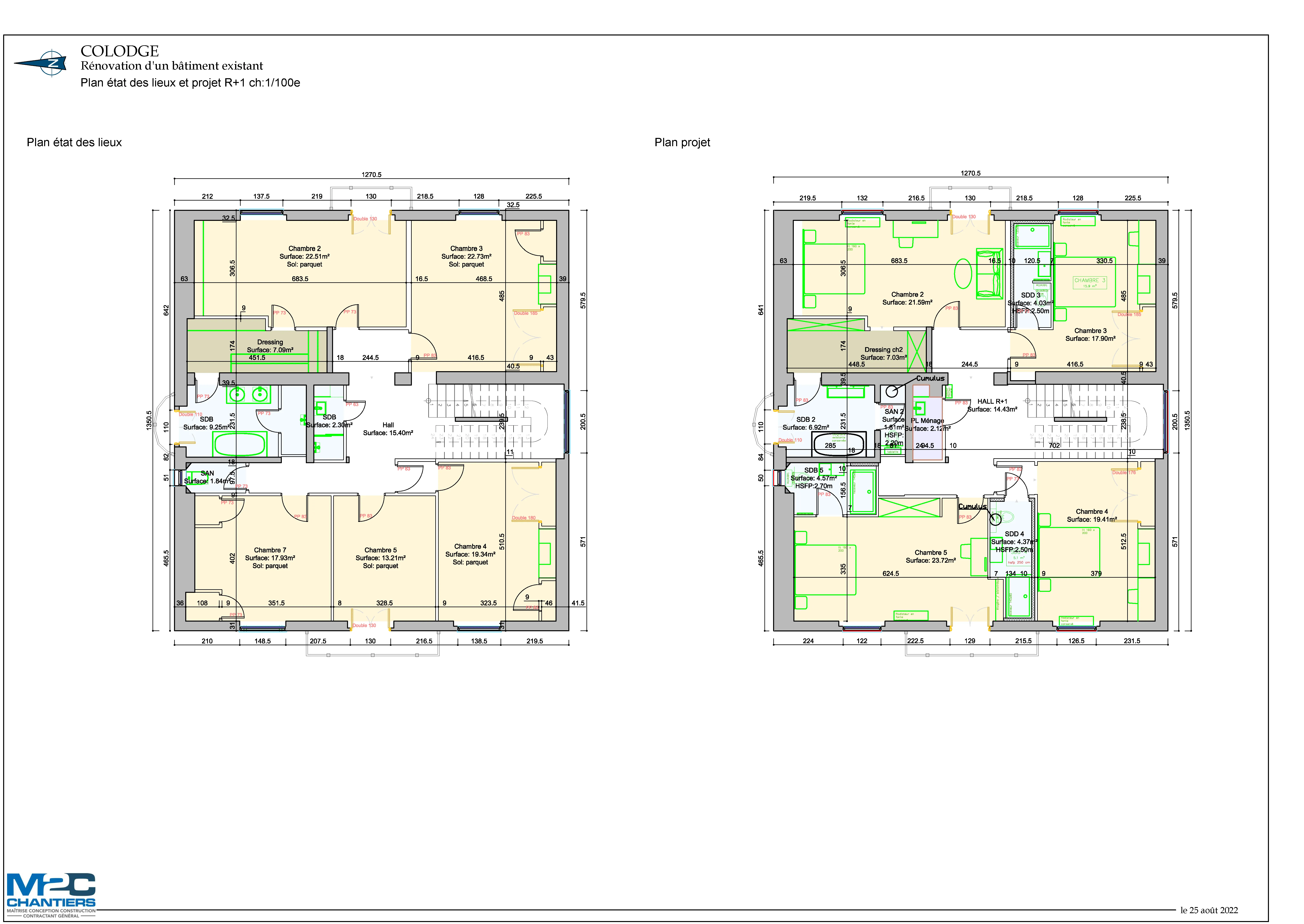
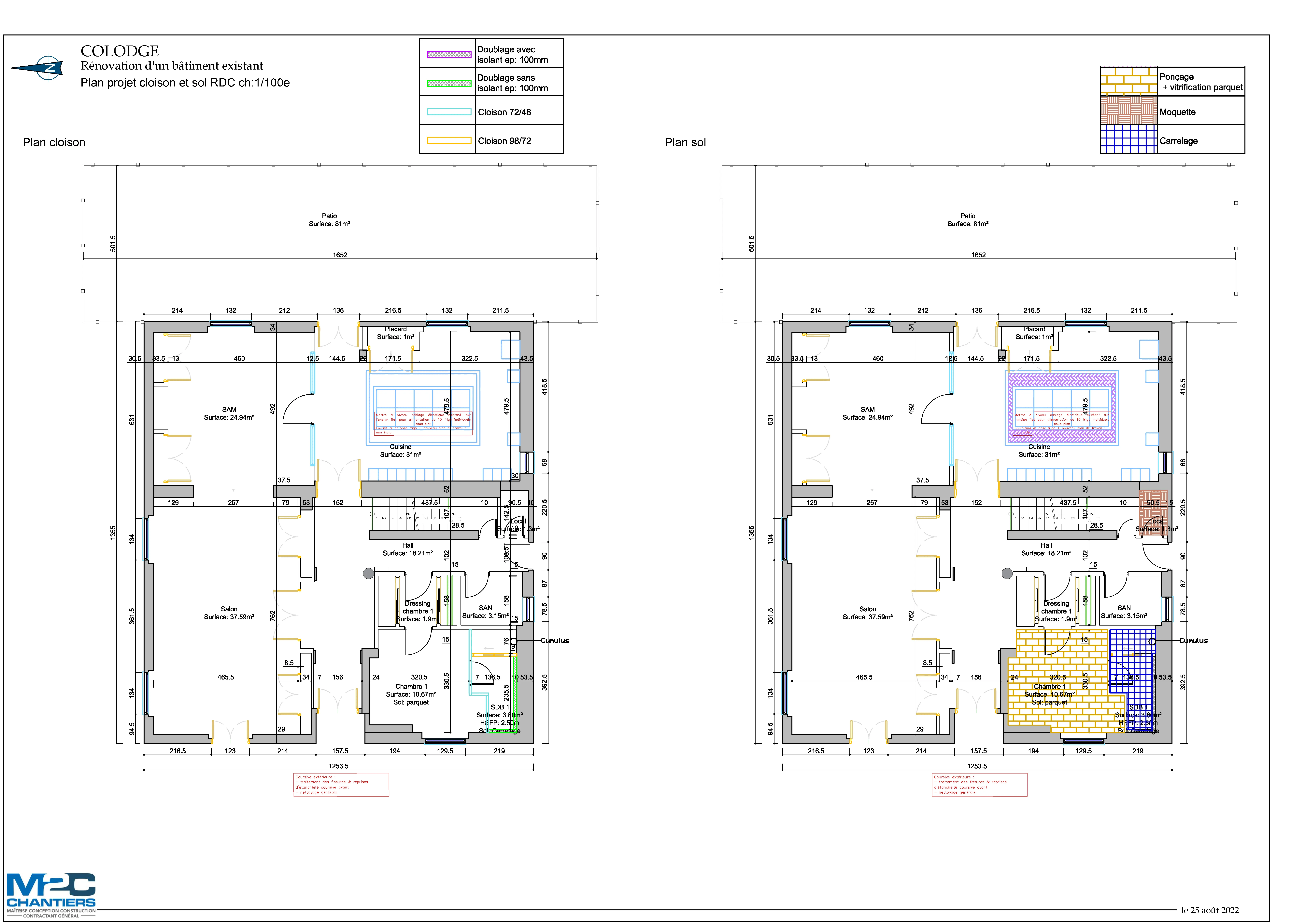
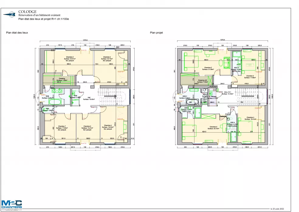
Notre Objectif ? Créer un habitant unique en favorisant les échanges, le partage et la mixité des modes de vie. Ensemble, nous avons rénové avec soin une résidence de qualité au cœur d'un quartier prisé. Les chambres privées, conçues pour le confort, offrent un équilibre parfait entre intimité et communauté.
De plus, la cuisine haut de gamme, les espaces communs chaleureux et nos installations polyvalentes améliorent l'expérience du coliving.
Notre Objectif ? Créer un habitant unique en favorisant les échanges, le partage et la mixité des modes de vie. Ensemble, nous avons rénové avec soin une résidence de qualité au cœur d'un quartier prisé. Les chambres privées, conçues pour le confort, offrent un équilibre parfait entre intimité et communauté.
De plus, la cuisine haut de gamme, les espaces communs chaleureux et nos installations polyvalentes améliorent l'expérience du coliving.



