LOCALISATION : LOIRE(42), Allier (03), Haute-vienne (87), Haute-loire (43), drôme (26)
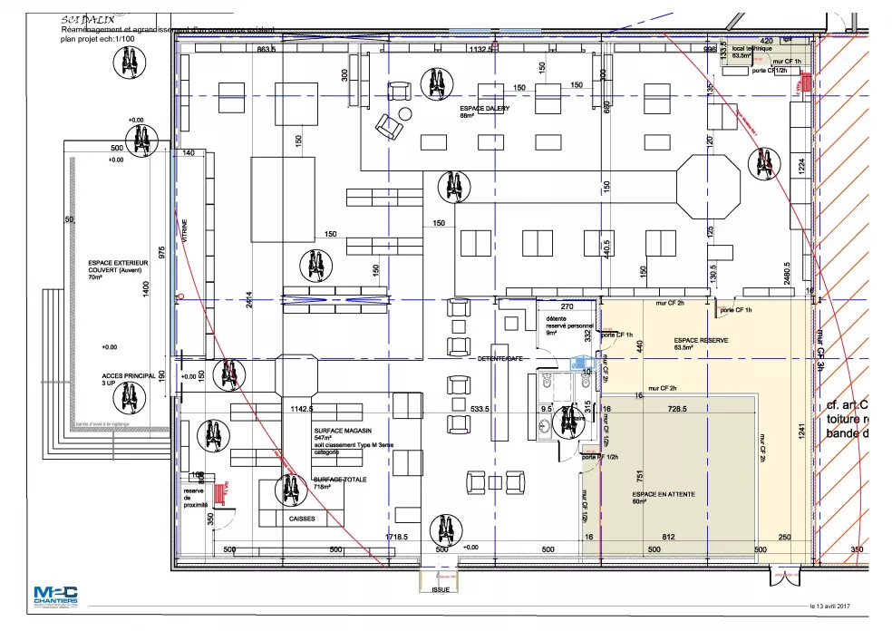
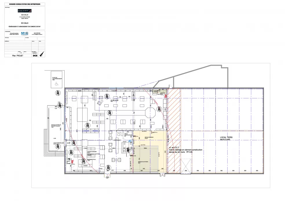
dalery maroquinier
de sa conception..
M2C Chantiers a réalisé et conçu le projet de construction et d'aménagement de surface commerciale pour le groupe indépendantDalery Maroquinier dans le département 42. Les particularités du chantier comprenaient la mise en place d'un faux plafond noir, le désamiantage et l'utilisation de parement en pierre. M2C Chantiers a su relever ces défis pour livrer un projet de qualité répondant aux besoins spécifiques du client.





