LOCALISATION : LOIRE(42)
Miroiterie des plaines
de sa conception..
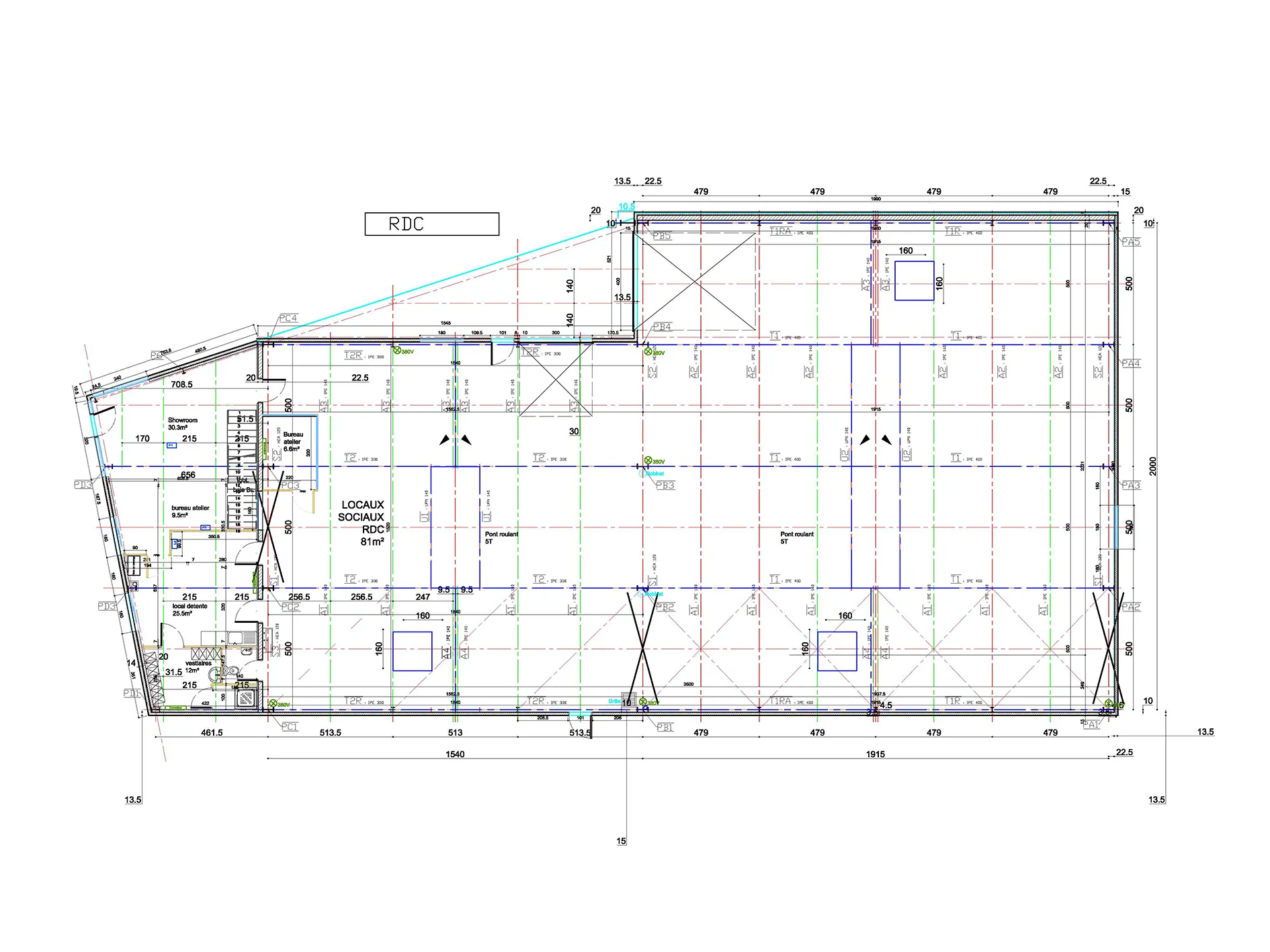
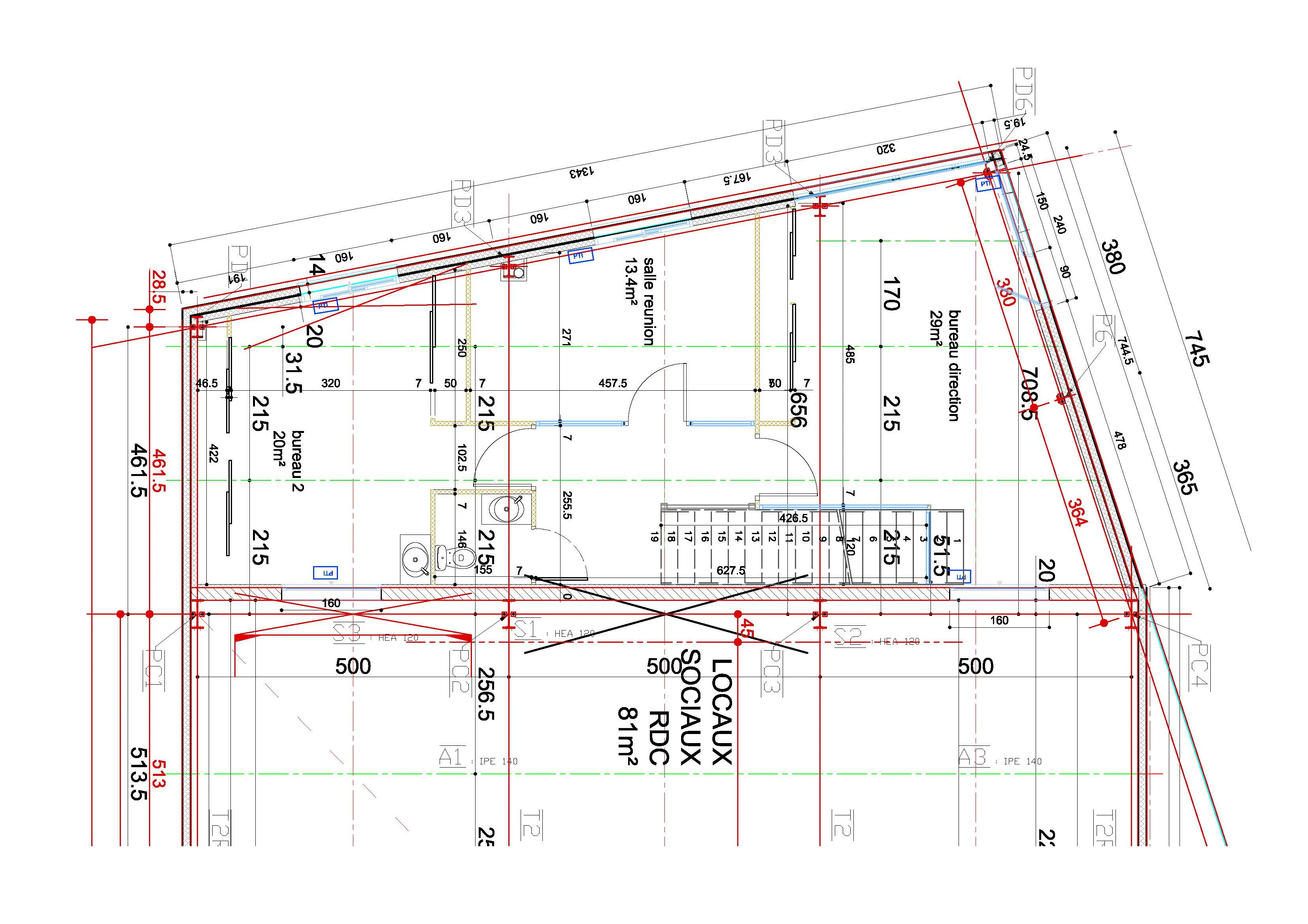
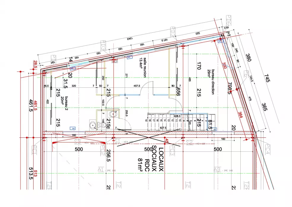
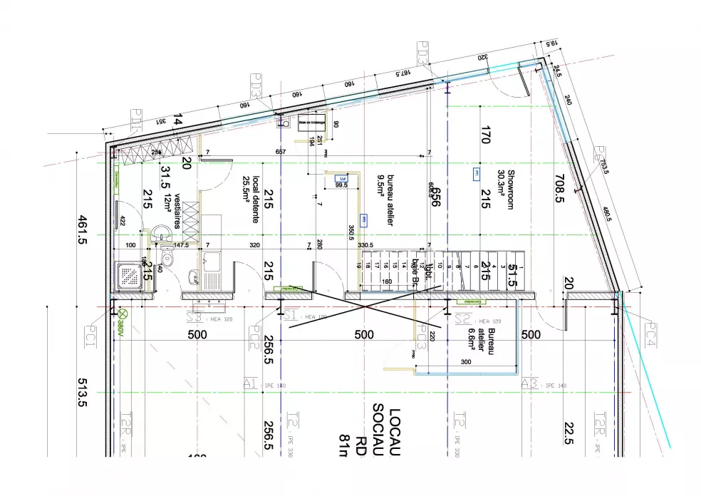
L'entreprise Miroiterie des plaines, située dans le département de la Loire (42), est une miroiterie indépendante spécialisée dans la conception et la réalisation de miroirs, vitrages et verres pour la construction neuve et les extensions de bâtiments. Conçu et réalisé par M2C Chantiers, son processus industriel est intégré avec des ponts roulants pour une efficacité optimale.



