LOCALISATION : Haute-loire (43)
notus
sa réalisation..
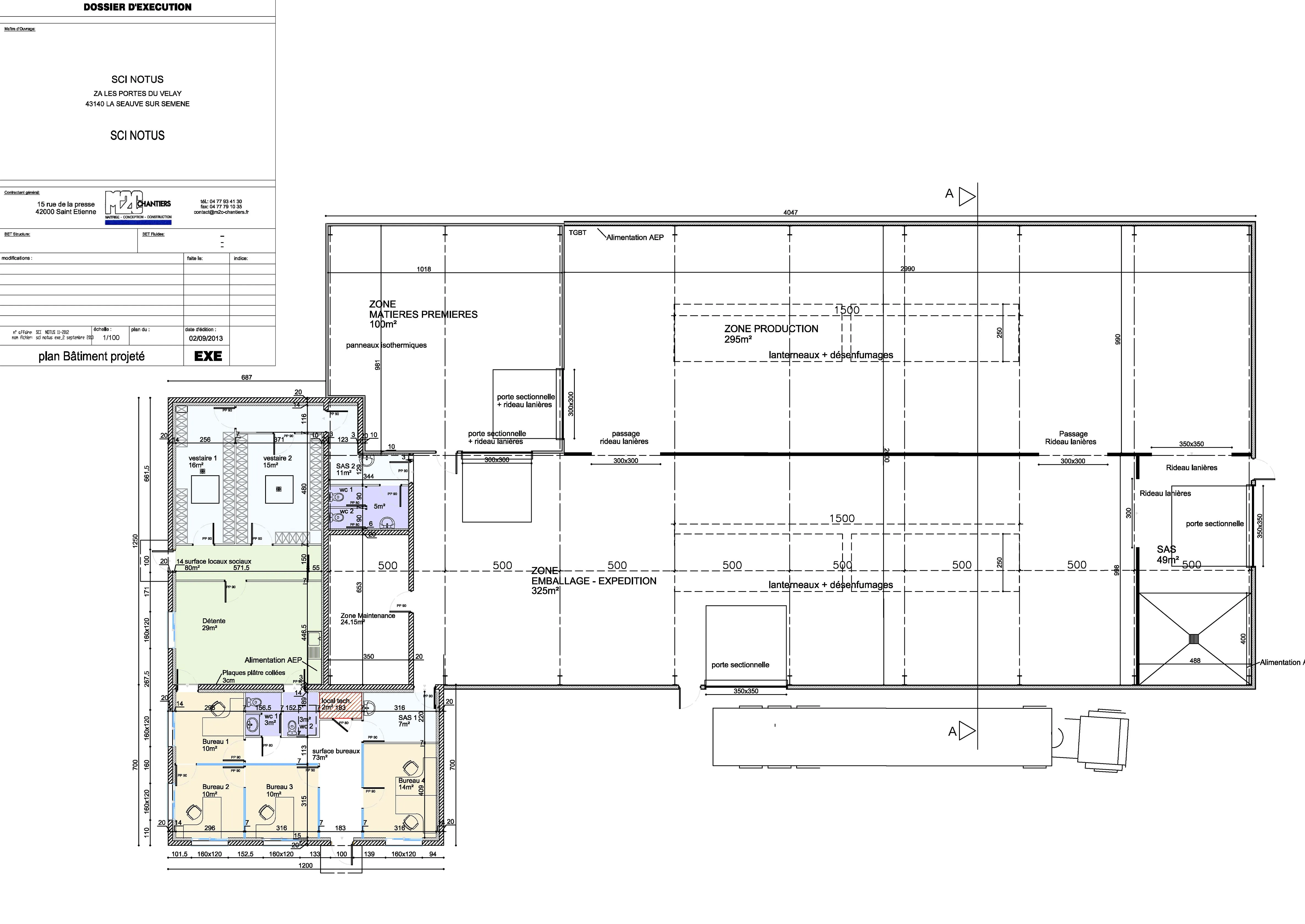
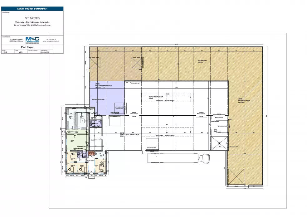
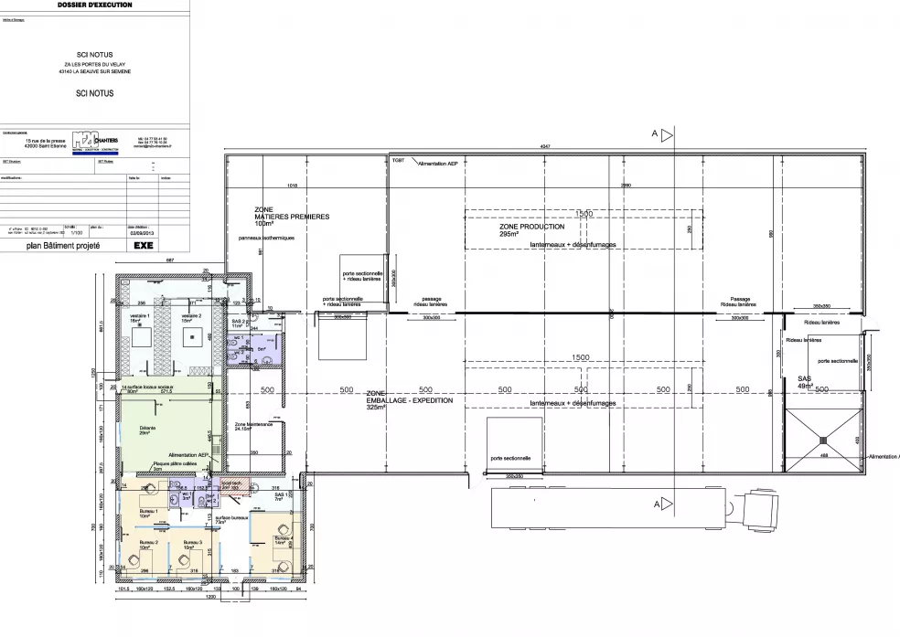
Notus, entreprise agroalimentaire située dans le département de la Haute-Loire (43), dispose d'une zone froide de 1000 m² pour la conservation de ses produits. Conçu et réalisé par M2C Chantiers, son processus industriel est intégré pour une gestion efficace de la production. Notus se distingue en offrant une conservation en froid positif de ses produits, tout en maintenant leur qualité et leur fraîcheur. Grâce à son expertise et son savoir-faire, M2C Chantiers est devenu un partenaire de confiance pour les professionnels de l'agroalimentaire.

