LOCALISATION : LOIRE(42)
pacifica
de sa conception..
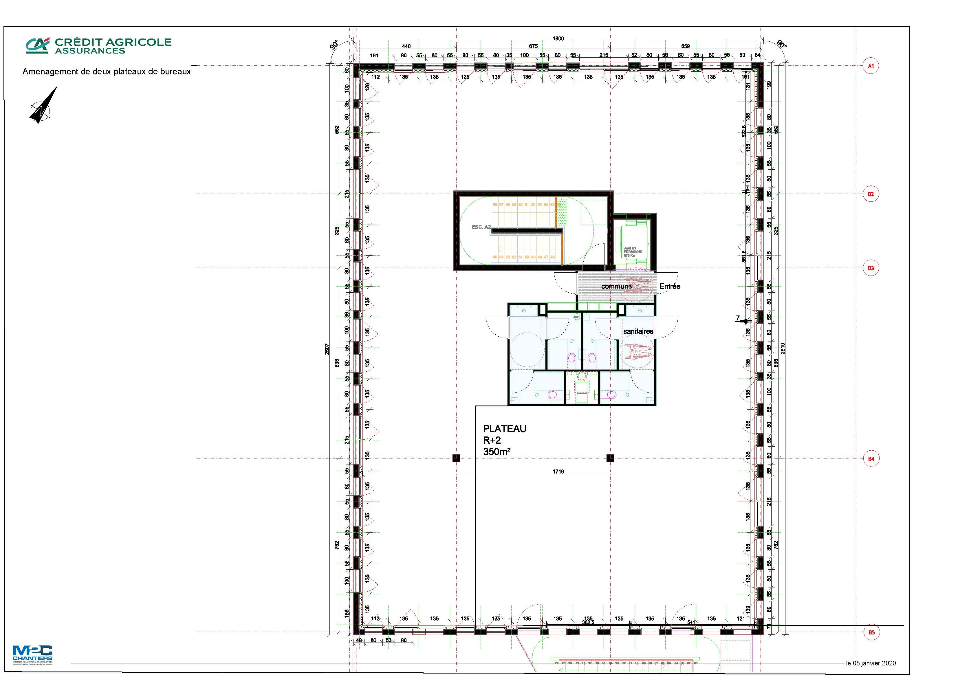
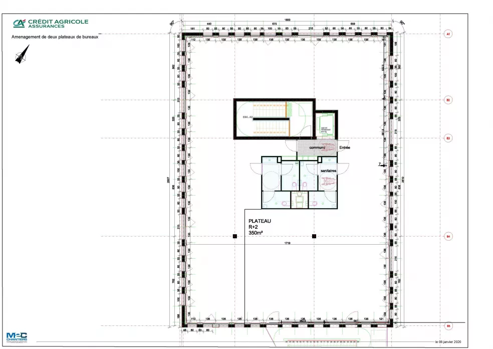
M2C Chantiers a réalisé et conçu les travaux pour les locaux de l'assurance Pacifica situés dans le département de la Loire (42). Les particularités de ce projet incluent une vitrophanie moderne qui ajoute une touche d'originalité, ainsi que des luminaires suspendus qui assurent un éclairage optimal. Les cloisons vitrées toute hauteur offrent une grande luminosité et une vue dégagée pour un environnement de travail agréable.


