LOCALISATION : Auvergne Rhône Alpes
prodélices
sa réalisation..
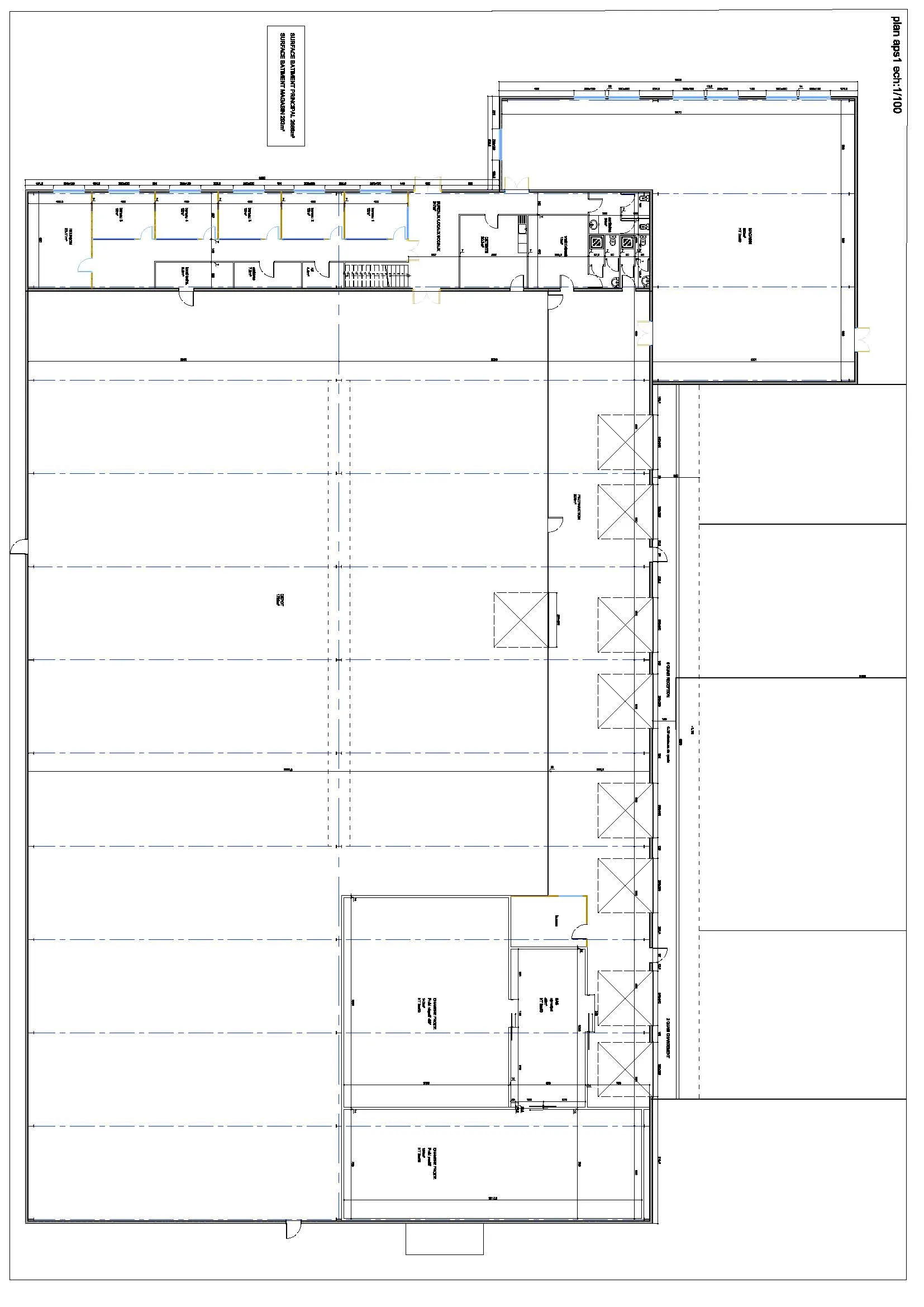
Prodélice est un logisticien grossiste alimentaire, avec 5 sites implantés en Rhône-Alpes. Conçu et réalisé par M2C Chantiers, son site est équipé de chambres froides à la fois en froid négatif et en froid positif.
Les quais de livraison et d'expédition sont adaptés pour faciliter les opérations logistiques, permettant ainsi une gestion optimale de la chaîne d'approvisionnement. Grâce à une logistique efficace, Prodélice est en mesure de fournir des produits de qualité à ses clients dans toute la région Auvergne-Rhône Alpes.


